• Modulsysteme
  • Baugröße H0
  • H0 USA
  • East-Coast-Division
  • North American Industries

 

North American Industries

Hafen- und Industriemodule für H0-USA

 

 

North American Industries entstand als Gemeinschaftsprojekt mit der Southwest Division.

 

Themen

 

Die Module von North American Industries spielen im Umfeld von urbanen und maritimen Industriegebieten in Nordamerika. Auf den einzelnen Modulen kann zum Thema 'Hafen und Industrie' ein beliebiges Motiv gestaltet werden. Ein Motiv ist sorgfältig zu recherchieren, die amerikanische Art, Dinge anzugehen, ist in die Planungen mit einzubeziehen.

 

Gestaltung

 

Entsprechend der gewählten Vorbildregion ist das Modul auszugestalten.

Gelände: Für Bodenbewuchs am Modulübergang ist die Verwendung der sehr gut miteinander harmonierenden Produkten der Firma Woodland Scenics vorgeschrieben.

Schotter/Ballast: Es ist Echtsteinschotter zu verwenden. Durchgehendes Hauptgleis Kalksteinschotter, bspw. ASOA 1101 oder ähnlich, mit einer Körnung von 0,2 - 0,8mm. Durch die Bandbreite der Schotterkörnung soll es dem Modulbesitzer möglich gemacht werden, sowohl gut gepflegte und viel befahrene Gleise, als auch einfaches, in den Dreck geworfenes Gleis darzustellen. Nebengleise und private Gleisanschlüsse können nach Belieben gestaltet werden.

Strasse: Die durchgehende Strasse mit einer Breite von 10 cm wird in Betonplattenoptik dargestellt. Die Farbe ist RAL7032 Kieselgrau. Die Plattengröße beträgt 5x5 cm. Um dem amerikanischen Sicherheitsgedanken Rechnung zu tragen ist die Strasse zum Gleis mit einem Bordstein in der Größe von 1x1 mm (im Anschluß an die Straße) zu begrenzen. (Alle anderen Strassen können nach Belieben gestaltet werden.)

Gebäude: Fabrikgebäude in Backstein- oder Betonoptik dürfen bis zur Modulkante gebaut werden. Dabei dürfen in den Wänden zur Modulgrenze keine Fenster eingebaut werden. Wellblechgebäude, Holzgebäude, sowie Geländeabgrenzungen wie Mauern und Zäune dürfen maximal bis 1 cm zur Modulgrenze gebaut werden.

Hafen: Die Wasseroberfläche der Hafenbecken liegt 6 cm unterhalb der Schienenoberkannte, also bei 124 cm über dem Boden. Das soll ein MTH (Mittleres Tiden Hochwasser) darstellen. Die Wasserfarbe ist fast schwarz/anthrazit bis schwarzgrau/-grün, tlw. bräunlich.

Hintergrund: Hintergründe sind gewünscht, aber keine Pflicht. Sie haben eine Höhe von 40cm über der Außenkante des Endprofil. Es gibt keine durchgehende Landschaftsstruktur auf den Hintergründen, am Modulübergang wird nur Himmel dargestellt. Die Himmelfarbe ist zu mischen aus einem Teil RAL 5015 Himmelblau und 10 Teilen RAL 9010 Reinweiß. Es ist darauf zu achten, dass der Himmel am Übergang zum Gelände heller wirkt.

 

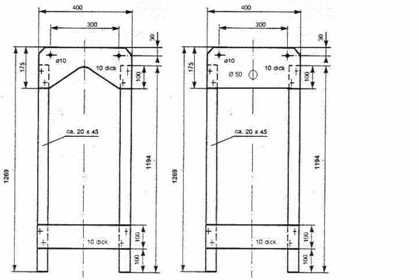
Modul-Endprofil

 

Für das Thema Industriegebiet wird ein asymmetrisches Profil verwendet. Dadurch wird mehr Platz für die detaillierte Gestaltung gewonnen. Die Gleismitte liegt 150mm, die Straßenmitte in einem Abstand von 70mm von der vorderen Modulkante.

Das Standard-Endprofil für North American Industries:

 

 

 

Zusätzliche optionale Gleise sind mit einem Gleismittenabstand von 60mm rechts oder links des Hauptgleises zu legen.

 

 

Modulbau

 

Die Modulstirnseiten müssen absolut senkrecht stehen.

 

 Das Gleis stößt rechtwinklig auf das Endprofil.

 

Modulgeometrie

Die Modulgeometrie (Gesamtlänge, Breite usw.) zwischen den Endprofilen kann frei gewählt werden. Bitte auf Transportmöglichkeiten achten.

 

Modulhöhe

Die Höhe zwischen Fußboden und Schienenoberkante beträgt 1300 mm.

 

Modulfüße

Alle Module mit einer Länge von über 50 cm benötigen einen Modulfuß. Ein Modulfuß besteht aus 2 Holzleisten, die durch 400 mm breite Sperrholzbretter oben und unten miteinander verbundenen sind. Das obere Sperrholzbrett ragt 75 mm über die senkrechten Leisten hinaus und hat die gleichen Bohrungen wie das Endprofil. Die Module werden so mit den Endprofilen auf die Stirnseiten der senkrechten Leisten gestellt, dass sich je 2 Module und ein Modulfuß verschrauben lassen. Das untere Sperrholzbrett dient als Versteifung. Die Modulfüße können ohne Höhenverstellung hergestellt werden.

 

 

Modulverbindung

Module werden mit Flügelschrauben M8x60, Flügelmuttern M8 und entsprechenden Unterlagscheiben (Bauscheiben!), Stärke 1mm, miteinander verbunden.

 

Farbgebung des Modulkasten

Die Seitenteile des Modulkasten sind in RAL 1001 beige matt zu streichen.

Gleise

Für das durchgehende Gleis ist Code-70, Code-75 oder maximal Code-83 Gleis zu verwenden. Bei Weichen ist auf amerikanische Schwellenlage zu achten. Am Modulübergang ist für das durchgehende Gleis und die optionale Siding das gleiche Gleis zu verwenden. Für Nebengleise ist Code-40 oder Code-55 Gleis zulässig. Dabei ist jedoch auf einwandfreien Lauf der Räder zu achten! Die Schienenprofile enden bündig am Modul-Endprofil. Die Schwellen liegen direkt auf dem Holz der Endprofile auf. Alle Gleise sind zu altern!

Der Mindestradius für die durchgehenden Gleise beträgt 1000 mm (40“), für Abzweigungen 600 mm (24“), für Weichen im durchgehenden Stammgleis ist mindestens #6 (bzw. PECO medium) vorgeschrieben.

Um Zugtrennungen zu vermeiden, ist der Einbau von Entkupplungsmagneten im durchgehenden Hauptgleis untersagt. Entkuppelt wird hier mit Entkupplungshilfen.

Schienenverbinder an den Modulenden sind nicht vorzusehen.

Die Verwendung von Weichen mit polarisierten Herzstücken ist vorgeschrieben.

 

DCC und LocoNet

Unter zusammengehörigen Segmenten mit einer Länge von mindestens 3 m ist ein Booster- Anschluss mittels zweier 4mm Buchsen vorzusehen. Es ist ein FREMO-tauglicher DCC-Booster vorzuhalten. Ebenfalls ist eine fest eingebaute DCC-Verkabelung erlaubt. Diese ist in Sternform auszuführen!

Elektrik

Es wird das sogenannte Hetero-System verwendet . Unter jedem Modul innerhalb des Modulkastens sind zwei durchgehende Leitungen mit einem Querschnitt von mindestens 1,5 mm˛ für die Stromversorgung der Gleise zu verlegen, mit denen sie – am besten mehrfach – zu verbinden sind. Dabei endet nur das jeweilige linke Kabel (vom Modul weg zeigend) in einer Buchse. Das rechte Kabel ist 50 cm länger und endet direkt in einem Stecker.



 

Die elektrische Verbindung zwischen den Teilen einer mehrteiligen Modulgruppe kann vom Erbauer unter Berücksichtigung des Querschnitts frei gewählt werden.

Eine Befestigungsmöglichkeit durchlaufender Leitungen (LocoNet, etc.) ist vorzusehen. Dies kann durch einen von unten ins Modul eingeschraubten Haken o.ä. geschehen. Zugelassen sind auch Lochhalterungen in Beinen, zu sehen in der rechten Beinzeichnung.

Der erforderliche Strom für Antriebe o.ä. ist durch einen separaten, externen Trafo/Netzgerät sicherzustellen. In Modulen dürfen keine Kabel verlegt werden, welche Netzspannung (230V) führen. Es dürfen ausschließlich für den Modellbahnbetrieb geeignete Trafos genutzt werden. Des Weiteren dürfen keine selbstgebauten 230V – Stromverteiler eingesetzt werden. Eigenbauten mit 230V – Anschluss müssen VDE – Vorschriften entsprechen.

Im Übrigen gilt das Pflichtenheft für Treffenteilnehmer (Fassung Juli 2006)

 

Das 'Kleingedruckte'

Alle Module sollen beim „FREMO-Katasteramt“ erfasst und bezeichnet werden. Dazu sind betriebsbereite Module zur Katalogisierung an das jeweilige regionale „Katasteramt“ zu melden. Die von dort zugeteilte Modulbezeichnung sollte gut sichtbar an/unter dem Modul angebracht werden.

 

Sonstiges

Betrieb und Fahrzeuge sind in der Standardnorm geregelt.

 

Anhang

Material

Nachstehend aufgeführte Materialien sind Vorschläge. Produkte anderer Hersteller müssen qualitativ gleichwertig sein!

Schotter:

- ASOA Kalksteinschotter 1101

- JEWEHA modelbouw Kalkstein Gleisschotter normal 0222

Sand:

- G.P.P. Ocre jaune Clair SD 04

- JEWEHA modelbouw Kalkstein Splitt Staub 0230

- JEWEHA modelbouw Kalkstein Splitt fein 0231

Flocken:

- WOODLAND-SCENICS T43 yellow grass = NOCH 95120

- WOODLAND-SCENICS T44 burnt grass = NOCH 95130

- WOODLAND-SCENICS T45 green grass = NOCH 95140

- WOODLAND-SCENICS T50 earth blend = NOCH 95010

(Elektrostatische Begrasung ist partiell erlaubt.)

Gleise:

- MICRO ENGINEERING

- PECO

- SHINOHARA (Walthers)

- Selbstbau

- (ATLAS)

 

 

Die Seite wurde zuletzt geändert: 15.09.16, 15:18:20 
Testing
FREMO-Logo
  • DE
  • EN
  • NL
  • DA
  • SV
  • FI
  • FR
  • NO
  • IT
  • ES
  • CZ
  • PL
  • Startseite
  • Letzte Änderungen
  • Sitemap
  • Impressum
  • Datenschutz
  • Mitgliedschaft
  • Login/Logout
  • Über den FREMO
  • FREMO in Europa
  • Treffen
  • Stammtische
  • Treffenberichte
  • Praxis
  • Modulsysteme
    • Baugröße N
    • Baugröße TT
    • Baugröße H0
      • H0-Europa
      • H0 USA
        • Pacific Divison
        • East-Coast-Division
          • North American Industries
          • FREMO BELT LINES
        • Southwest-Division
        • Mid-West-Division
        • Narrow Gauge Division
        • US-fine-H0
        • East-Division
        • Maple Leaf Division
        • H0-USA Frachtsystem
        • FREMO BELT LINES
      • 00Fremo
    • Baugröße 0
    • Baugröße I FREMO:32
    • Baugröße II FREMO:22,5
  • Moduldatenbank(en)
  • Hp1 Modellbahn
FREMO – Freundeskreis Europäischer Modellbahner e. V.